Sale & Lease Back is a financing method in which a company sells its property in order to subsequently lease it back from the buyer on a long-term basis. Investors are increasingly focussing on corporate real estate and business parks are showing an ever greater visual change. Profit from the sale of your property by strengthening your liquidity base and investing in the future of your company. You can continue to use the sold property as usual.
Does this sound interesting to you? Then please do not hesitate to contact us.
Das Rammelsberg-Haus in der Rammelsberger Straße 2 ist ein markantes Büro- und Verwaltungsgebäude im Herzen von Goslar. Auf sechs Etagen bietet es flexible und repräsentative Büroflächen für Unternehmen verschiedenster Branchen – vom Bankinstitut bis zur Stadt Goslar.
Die Lage überzeugt durch hervorragende Sichtbarkeit an den Bundesstraßen B241 und B82 sowie durch die Nähe zur Goslarer Innenstadt, die in weniger als fünf Minuten zu Fuß erreichbar ist. Drei Bushaltestellen in unmittelbarer Nähe sorgen zudem für eine optimale Anbindung an den öffentlichen Nahverkehr.
Vor dem Gebäude befinden sich ausreichend Stellplätze. Beim Betreten des Gebäude finden Sie sich im großzügen Foyer wieder, das auch Zugang zu den Aufzügen bietet. Das gesamte Gebäude ist mit einem Schließsystem via Schlüsselkarten ausgestattet.
Das 3. Obergeschoss verfügt über ca. 670 m² flexibel nutzbare Bürofläche, aufgeteilt in zwei Einheiten à ca. 335 m². Die Räume bieten eine solide Ausstattung mit eigenen Sanitärbereichen, Küchen, Garderoben sowie mehreren Büro- und Besprechungszimmern. Ideal für Unternehmen, die funktionale Arbeitsräume in zentraler Lage suchen.
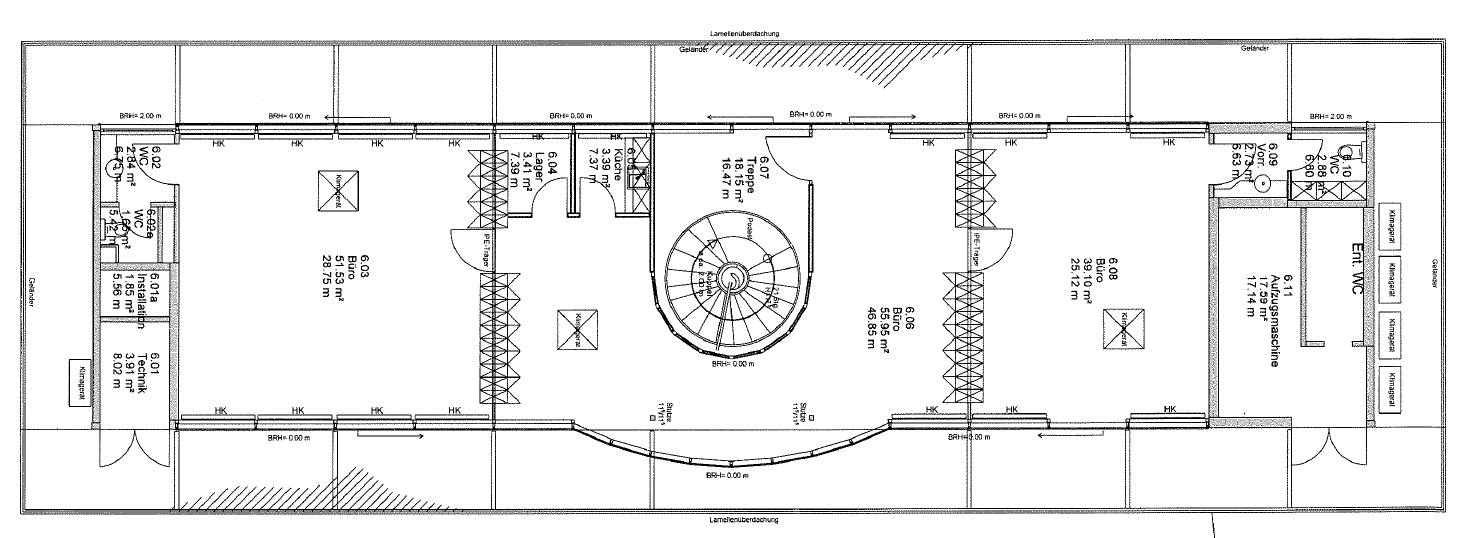
Mit rund 670 m² Gesamtfläche bietet das 4. Obergeschoss des Rammelsberg-Hauses zwei flexibel teilbare Einheiten (je 335 m²) für individuelle Nutzungskonzepte. Jede Einheit verfügt über separate WCs, eine Küche, Garderobe sowie vielseitig nutzbare Büro- und Konferenzräume. Die Flächen eignen sich besonders für Unternehmen, die repräsentative, gut angebundene Büros in zentraler Lage von Goslar suchen.
Das oberste Geschoss des Rammelsberg-Hauses bietet auf 164 m² eine kompakte Bürofläche mit separaten Nebenräumen, WC, Küche und Besprechungsraum. Durch die erhöhte Lage genießen Sie hier einen besonderen Ausblick über Goslar. Die Einheit eignet sich ideal für kleinere Unternehmen oder Projektteams, die einen ruhigen, repräsentativen Arbeitsplatz in einem architektonisch bedeutenden Gebäude suchen.
.jpeg)
.jpeg)

You can also sell your property to us without continuing to use it yourself in the future.